Property Details
25 Main Street West, Suite 603, Hamilton, ON
Office / $12.00 Net PSF
Property Details
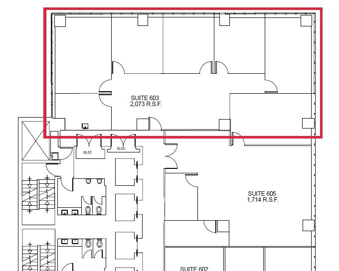
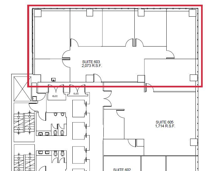
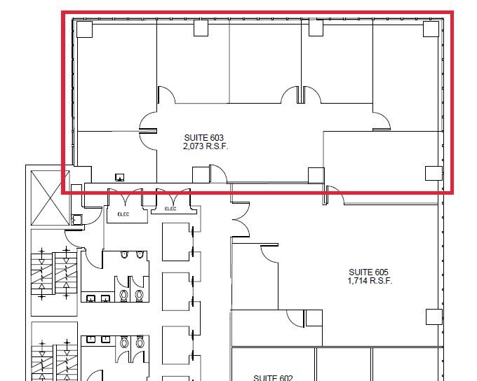
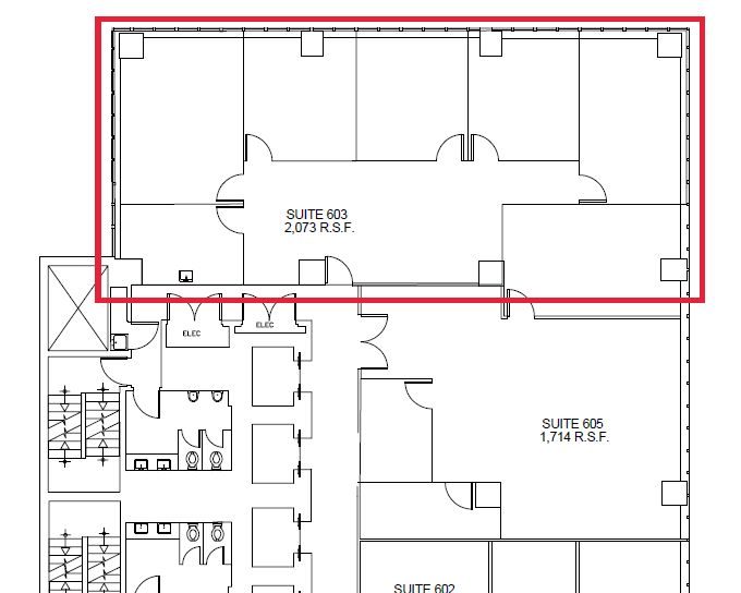
Office space for lease in Hamilton. This 2,073-square-foot office suite offers an efficient layout with abundant natural light from windows on the west, south, and east sides, providing stunning city views. The space is thoughtfully designed with a welcoming reception area, a functional kitchenette, a spacious boardroom, and four private offices, catering to diverse business needs. Situated within a 22-story office tower, the building is home to prominent tenants such as BDC Bank and AJ Clarke & Associates. Tenants benefit from on-site underground parking and adjacent parking facilities. The building's prime location offers immediate access to public transit, banking services, and shopping options just one block away. Steps from City Hall and courthouses, this property is ideal for businesses seeking a prestigious address with unparalleled convenience.
Floors
22
TMI/CAM
$16.00
Zoning
D1
Municipal Services
Yes
Office %
100%
Parking
Yes
Floor Plans
Virtual Tour
Property Features
Ample parking
Downtown
Elevator
Fully Air Conditioned
Good Visual
Public Transit
Shopping Nearby
none